Planungsbüro Annette Kreutzmüller | Dipl. Ing. Architektin + Dipl. Ing. Innenarchitektin
verpackungssysteme aus löhne
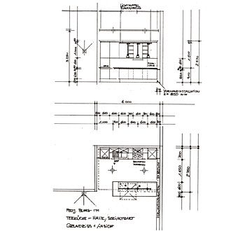
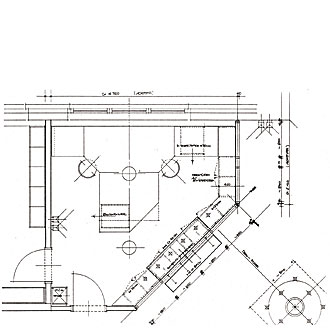
umbau verwaltungsgebäude und raumbildender ausbau sozialtrakt
umbau in zusammenarbeit mit beermann-architektur
farb-material-konzept
möbelierung | einzelmöbelplanung
beleuchtungsplanung
bauleitung
bauen im bestand
raumanpassung an ihre veränderten nutzungs- und gestaltungswünsche.
ihre firmenkultur für ihren mitarbeiter und für ihren kunden (er)lebbar machen.
langlebige + funktionale konzepte
frische ideen mit wohlfühlqualität.
von der grundrisslösung bis zum innenausbau- und tischlerdetail